PROJEKTI V LETU 2021
GASILSKI DOM ROGATEC
16. 11. 2021
V letu 2021 je bil predan v uporabo prizidek k obstoječem objektu Gasilskega doma Rogatec, s čimer se je zagotovilo boljše pogoje za delovanje PGD Rogatec, izboljšali so se pogoji za izvajanje ukrepov požarne varnosti, zaščite in reševanja.
V letu 2019 se je izdelala idejna zasnova za izdelavo prizidka h gasilskemu domu Rogatec ter izbralo izvajalca za izdelavo projektne dokumentacije DGD in PZI (podjetje BTI d.o.o.). 15.7.2020 se je pridobilo gradbeno dovoljenje.
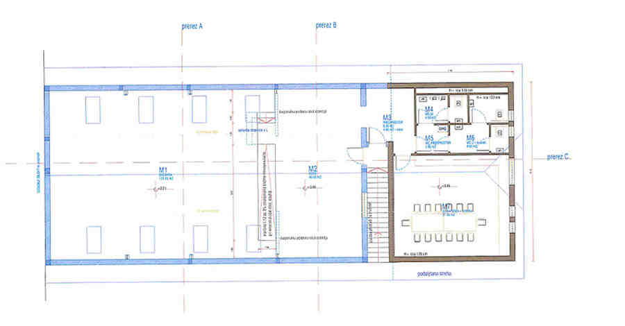
Prizidava je podolgovate tlorisne zasnove gabaritov 17,70 x 10.65 m + 23,95 x 2,80 m, etažnosti pritličje in nadstropje, neto tlorisne površine 415,72 m2.
V pritličju prizidave je garaža ter stopnišče za dostop v nadstropje obstoječe stavbe. Obstoječe stopnišče za dostop v nadstropje obstoječe stavbe se je odstranilo in nadomestilo z novim stopniščem.
V juliju 2020 je bilo objavljeno javno naročilo za izbor izvajalca del za gradnjo na Portalu javnih naročil. Podpis pogodbe z izbranim najugodnejšim izvajalcem del, podjetjem GES, gradbeništvo, energetika, sanacije, d.o.o., Opekarniška cesta 15C, 3000 Celje, je sledil konec septembra 2020. Izgradnja prizidka h gasilskem domu v Rogatcu je bila konec julija 2021 zaključena.
Vrednost celotnega projekta, vključno s projektno dokumentacijo, je 383.700,52 EUR.

ZAŠČITA IN PREZENTACIJA OSTANKOV GORNJEGA GRADU ROGATEC
Občina Rogatec je bila uspešna ja javnem razpisu Ministrstva za kulturo za izbor kulturnih projektov na področju nepremične kulturne dediščine oznaka: JPR2-SVP-2021-22. Podpis pogodbe o financiranju spomeniškovarstvenega projekta v letu 2021/2022 je sledil 23.7.2021.
Izbrani izvajalec, Gradnje Marguč d.o.o. je pričel z delom 21.6.2021, zaključek predviden do 30.9.2022.
Izvedla se bodo dela čiščenja in sanacije ostankov enega vogalnega slopa z delom zidu.
Planirana vrednost investicije je 79.207,11 EUR, predvideno sofinanciranje s strani Ministrstva za kulturo pa 39.595,63 EUR.



VRTEC ROGATEC
Vrtec je načrtovan kot pritlični prizidek k obstoječemu objektu OŠ Rogatec s 6 oddelki, razdelilno kuhinjo in vsemi potrebnimi spremljajočimi prostori.



Na Portalu javnih naročil je bilo 15.2.2021 objavljeno javno naročilo št. JN000819/2021-B01, za gradbena dela. Z izbranim najugodnejšim ponudnikom, LESNINA MG OPREMA, d.d., Ljubljana, Parmova ulica 53, 1000 Ljubljana je bila sklenjena gradbena pogodba dne 12.5.2021, po pridobitvi pozitivnega sklepa o sofinaniranju investicije s strani Ministrstva za izobraževanje, znanost in šport.
Gradnja je v teku. V naslednjem letu se predvideva zaključek gradnje in predaja v uporabo.


Vrednost investicije, in sicer izvedba gradbeno-obrtniških del, strojnih in elektro inštalacij, nabava opreme, ureditev okolice, nadzor ter koordinator za varnost in zdravje pri delu znaša 2.202.118,50 EUR.
Finančna konstrukcija projekta:
- posojilo Eko sklada, javni poziv za kreditiranje okoljskih naložb občin v gradnjo novih skoraj nič-energijskih stavb splošnega družbenega pomena 61ONS17, v znesku 836.831,18 EUR
- nepovratna sredstva javni poziv Eko sklada: 56SUB-LSRS17 Nepovratne finančne spodbude za nove naložbe nove naložbe v gradnjo skoraj nič-energijskih stavb splošnega družbenega pomena (Ur.l. RS, št. 58/17 in 39/18) v znesku 387.316,00 EUR
- nepovratna sredstva Javni razpis za sofinanciranje investicij v vrtcih in osnovnem šolstvu v Republiki Sloveniji v proračunskem obdobju 2021 – 2024, Ministrstva za izobraževanje, znanost in šport v znesku 917.176,70 EUR
- razlika bo zagotovljena iz proračuna Občine Rogatec, sredstva za uravnoteženje razvitosti občin
DOM STAREJŠIH ROGATEC



Ministrstvo za delo, družino, socialne zadeve in enake možnosti bo zagotovilo dodatna sredstva za gradnjo domov za starejše. Del sredstev prihaja kot pomoč EU in odziv na krizo v času pandemije covid-19, kjer so starejši v domovih najbolj ogrožene skupine.
Občina Rogatec je, v dogovoru z Domom za starejše Šmarje pri Jelšah, v oktobru 2020 pristopila k izdelavi projektne dokumentacije – DGD in novembra pridobila gradbeno dovoljenje za gradnjo doma za starejše, kot dislocirane enote obstoječega Doma starejših v Šmarju pri Jelšah. Izdelavo PZI dokumentacije in gradnjo doma za starejše bo financiralo Ministrstvo za delo, družino, socialne zadeve in enake možnosti, kot predvideva že podpisan Sporazum o gradnji. Lokacija predvidenega doma se nahaja v Hofmanovi ulici, na zemljišču v lasti Občine Rogatec. Občina je tako zagotovila zemljišče in sredstva za izdelavo DGD dokumentacije ter svetovanja, pridobila gradbeno dovoljenje, izdelava PZI in gradnja pa je na strani Ministrstva.
V načrtu so namestitvene kapacitete za okoli 32 uporabnikov, predvideno je 18 enoposteljnjih sob in 7 dvoposteljnjih. Novi dom bo stal dobre tri milijone evrov.
Dom upokojencev Šmarje pri Jelšah je uspešno kandidiral na Javnem razpisu za sofinanciranje vlaganj v infrastrukturo za krepitev odpornosti izvajalcev institucionalnega varstva, upoštevajoč deinstitucionalizacijo, v okviru Operativnega programa evropske kohezijske politike v obdobju 2014–2020, prednostne osi 15 »REACT EU – ESRR, s projektom graditve dislocirane enote Rogatec. Predvideno sofinanciranje do 100% upravičenih stroškov projekta.
Začetek gradnje se planira sredi leta 2022, dokončanje pa v letu 2023.
DRŽAVNE KOLESARSKE POVEZAVE

Nadaljujejo se dela v zvezi z izgradnjo kolesarskih povezav. Izdelana je PZI dokumentacija izgradnje državnih daljinskih kolesarskih povezav, in sicer ob glavni cesti od Brezovca do Dobovca in ob regionalni cesti od Rogatca do meje z občino Majšperk. Stroške izdelave dokumentacije je v celoti krilo Ministrstvo za infrastrukturo.
V okviru Dogovora za razvoj regij (DRR) je Služba vlade za razvoj in evropsko kohezijsko politiko (SVRK) v septembru 2021 izdala odločitev o podpori za operacijo gradnje regionalnih kolesarskih povezav za zagotavljanje trajnostne mobilnosti, tudi za odsek Brezovec-Rogatec-Muzej na prostem, v dolžini 7.003 m. Zgrajene bodo nove kolesarske površine, tam kjer to ni mogoče ali pa ni ekonomično bodo potekale na vozišču obstoječih, manj prometnih cest.
Odsek Brezovec-Rogatec-Muzej na prostem:
Celotna ureditev kolesarske povezave znaša 7.003 m, od tega gradbene ureditve 3.970 m, prometne ureditve po obstoječih površinah pa v dolžini 3.033 m. Predvidenih je sedem odsekov, prvi in drugi odsek sta v občini Rogaška Slatina, preostali odseki so v občini Rogatec.
Odsek 1 – od R3-685/7450 do LC 356072. Celotna dolžina odseka 1, kjer je predvidena prometna ureditev obstoječih prometnih površin znaša 2.230 m.
Odsek 2 je predviden po LC 356072 kot novogradnja enostranske dvosmerne kolesarske steze (ob levi strani lokalne ceste) do križišča z G2, kjer je predviden prehod za kolesarje. Dolžina odseka 2 znaša 1020m.
Pričetek odseka 3 je na meji med Občinama Rog. Slatina in Rogatec, pri brvi čez potok Teršnico. Trasa poteka ob desni strani glavne ceste, ločeno od vozišča. Dolžina enostranske dvosmerne kolesarske steze znaša 560 m.
Odsek 4 se začne s prehodom, od koder poteka kolesarska povezava po obeh straneh. Pa levi strani se obstoječi pločnik razširi na širno 2,0 m. Ob desni strani se zgradi nova kolesarska povezava v širini 2,0 m. V km 12.00 glavne ceste G2 je predvidena umestitev prehoda za pešce in kolesarje. Trasa nato poteka po levi strani proti Rogatcu. Predvidena je razširitev obstoječega pločnika na širino 3,0 m za umestitev kolesarske povezave. Dolžina odseka 4 znaša 1.601 m.
Odsek 5 poteka po naselju Rogatec, kjer je predvidena prometna ureditev z novo horizontalno in vertikalno signalizacijo kot enostranska dvosmerna kolesarska povezava ali po sistemu vodenja kolesarjev in motornega prometa skupaj na vozišču »Sharow«. Dolžina odseka znaša 803 m.
V odseku 6 je predvidena razširitev obstoječe pešpoti v površino za kolesarje, do muzeja na prostem in do prehoda za pešce preko R2-432 za dostop do OŠ Rogatec. Neposredno pred prehodom za pešce skupna površina za pešce in kolesarje prečka potok Draganja z novo brvjo. Dolžina odseka znaša 627 m.
Odsek 7 se konča pri coni S5 (zazidalni načrt za območje cone S5 v Rogatcu). Predvidena je izgradnja enostranske dvosmerne kolesarske poti, ločen z zelenico od vozišča. Na parih mestih pa je zaradi nedovoljenega posega na zemljišče predvidena izgradnja površin za kolesarje na pločniku. Dolžina odseka 7 znaša 702 m.
Predvidena izvedba del v letih 2022-2023.


OBVOZNICA MIMO TRŠKEGA JEDRA ROGATEC

Občinski prostorski načrt Občine Rogatec, kot zadnji občinski prostorski načrt (plan) določa in podaja usmeritve za pripravo OPPN za premik regionalne ceste iz trškega jedra. Potek je bil, glede na zahteve in pogoje Zavoda za varstvo kulturne dediščine, usklajen ob pripravi Izhodišč za pripravo OPPN in sprejetju Sklepa o začetku priprave OPPN za obvoznico (Ur.list RS, št. 48/2019).
Ureditev zajema novogradnjo dvopasovne ceste v dolžini 630 m, brez pločnikov in kolesarskih površin ter novo traso potoka Draganja. Na trasi so predvideni potrebni priključki in dostopi ter premostitveni objekti.
V letu 2021 se nadaljuje postopek sprejema OPPN za obvoznico mimo trškega jedra. Pristojno Ministrstvo za infrastrukturo, bo zagotovilo potrebne strokovne podlage in okoljsko poročilo. Osnutek OPPN bo tako v letu 2022 javno razgrnjen skupaj z okoljskim poročilom. Sledijo ostale zakonsko določene faze sprejema. Sprejem se predvideva v letu 2022.
PRIZIDEK – GASILSKI DOM DONAČKA GORA
Občina je pridobila gradbeno dovoljenje za izgradnjo prizidka h gasilskemu domu v Donački Gori. S predvideno prizidavo se bodo pridobili dodatni prostori za skladišče oz. manjšo garažo v pritličju objekta, ter novi prostori za sanitarije ter večnamenski prostor v mansardi. S prestavitvijo sanitarij in obstoječe kuhinje ter manjše sejne sobe v novi prizidani del, se bo obstoječa večnamenska dvorana povečala. Gradnja se predvideva v letu 2022.

DODATNA PONUDBA VEČDNEVNIH DOŽIVETIJ IN DEDIŠČINE




Projekt je prijavljen na 3. JAVNI POZIV za izbor operacij iz naslova podukrepa »Podpora za izvajanje operacij v okviru strategije lokalnega razvoja, ki ga vodi skupnost« za izvajanje Strategije lokalnega razvoja LAS Obsotelje in Kozjansko v programskem obdobju 2014 – 2020 sofinancirane iz sklada EKSRP. Pridobljen pozitiven sklep LAS Obsotelje in Kozjansko in potrditveni sklep Agencije RS za kmetijske trge in razvoj podeželja.. Prijavitelj projekta: Občina Rogatecm s partnerji Javnim zavodom za kulturo, turizem in razvoj občine Rogatec, Konjeniškim klubom Strmol in VoMed d.o.o.
S projektom bomo zagotovili razvoj dodatne, »zelene« in okolju prijazne ponudbe, ki bo težila k trajnostnemu razvoju območja. V občini Rogatec je vzpostavljen rokodelski center, ki kot edini na območju ohranja živo dediščino rokodelstva (tkanje, pletenje iz ličja, šibja, rogoza, kamnoseštvo, lončarstvo, steklarstvo). Rokodelsko znanje se pozablja, mentorji so starejši, mlajše je potrebno motivirati, da ohranimo živo dediščino, tovrstna znanja pa jim lahko predstavljajo osnovo za dopolnilno dejavnost, za morebitno pravo podjetniško idejo in samozaposlitev.
Letno obišče Rogatec cca 20.000 izletniških turistov. Ker primanjkuje nočitvenih kapacitet na lokalnem območju, je Občina Rogatec v letu 2018 odkupila objekt konjušnice v konjeniškem centru, ki se nahaja v neposredni bližini največjega muzeja na prostem v Sloveniji.
Del objekta konjušnice bo Občina Rogatec spremenila v nastanitvene kapacitete. Zagotovilo se bo 23 ležišč, s čimer pa bo omogočeno izvajanje tudi večdnevnih programov, katerih se do sedaj ni ponujalo. Izoblikovali se bodo novi programi, vezani na rokodelstvo ter program povezane turistične ponudbe lokalnega območja (naravna in kulturna dediščina, ostala lokalna ponudba). V sklopu konjeniškega centra se bo izoblikoval nov večdnevni intenzivni terapevtski program. Izdelalo se bo predstavitvene brošure, izvedlo izobraževanja in predstavitve rokodelstva. Z izvedbo projektnih aktivnosti se bo vplivalo na podeželsko prebivalstvo v smislu zaznave priložnosti za izdelovanje in trženje rokodelskih produktov, izoblikovani večdnevni turistični programi pa omogočajo povezano trženje lokalne ponudbe.
Skozi projektne aktivnosti se bodo izoblikovali novi, inovativni, večdnevni programi: večdnevni program terapevtskega jezdenja, večdnevni intenzivni izobraževalni programi steklarstva, večdnevni intenzivni izobraževalni program lončarstva, večdnevni turistični program. Navedeno predstavlja inovativne rešitve na območju, katere težijo k dolgoročnemu razvoju kulturnega turizma na območju. Skupna vrednost operacije 224.040,02 EUR od tega vrednost sofinanciranja 100.000 evrov.
Občina Rogatec ima v operaciji planirano izvedbo aktivnosti ureditve infrastrukture za trajnostni razvoj. Planirana vrednost aktivnosti – ureditev nastanitvenih kapacitet v objektu konjušnice – je znašala po tekočih cenah 210.997,20 EUR z DDV.
Občina Rogatec je objavila na Portalu javnih naročil javno naročilo, številka JN006704/2021-W01, z dne 1.10.2021, skladno z določili Zakona o javnem naročanju, po postopku naročila male vrednosti. Pridobljena je bila samo ena ponudba, katera je zaradi bistveno višje ponudbene cene – 363.338,98 EUR, kot imamo zagotovljena/planirana sredstva, spoznana za nedopustno.
Občina Rogatec je zaradi navedenega podala vlogo na Agencijo RS za kmetijske trge in razvoj podeželja za spremembo časovne dinamike projekta (izvedba v letu 2023) ter hkrati znižanje obsega investicije, v smislu izvedbe I. faze, v kateri bi uredili del planiranih aktivnosti.