Aktivnosti glede sprememb občinskih prostorskih aktov v občini
datum: 16.04.2021
kategorija: Sporočilo za javnost
AKTIVNOSTI GLEDE SPREMEMB OBČINSKIH PROSTORSKIH AKTOV
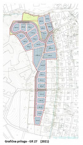
Odlok o OPPN za enoto urejanja prostora GR 27 (stanovanjska soseska)
Občina Gornja Radgona je v mesecu juliju 2019 pričela s postopkom priprave Odloka o občinskem podrobnem prostorskem načrtu za enoto urejanja prostora GR 27 (stanovanjska soseska). Območje podrobnega prostorskega načrta obsega celotno območje enote urejanja prostora GR 27 in del območja enote urejanja prostora GR 26, predvidenem za stanovanjsko gradnjo, ki se nahaja v osrednjem območju naselja Gornja Radgona, zahodno od državne ceste R2-230 Gornja Radgona – Radenci in južno od osnovne šole Gornja Radgona. Površina navedenega območja meri 3,6 ha in predstavlja pretežno nepozidana stavbna zemljišča. Z občinskim podrobnim prostorskim načrtom se bodo na navedenem območju določili prostorski izvedbeni pogoji tako, da se bo dopustila gradnja štiriindvajsetih enostanovanjskih stavb. Prav tako se z njim načrtuje gradnja prometnega, kanalizacijskega, vodovodnega, elektroenergetskega, plinovodnega in telekomunikacijskega omrežja ter ostalih gradbenih inženirskih objektov pod pogoji in zahtevami posameznega upravljavca.
Na podlagi sprejetega občinskega podrobnega prostorskega načrta bodo lahko investitorji pridobivali gradbena dovoljenja za gradnjo stanovanjskih stavb. Občinski podrobni prostorski načrt bo predvidoma končan do konca leta 2021. Dopolnjen osnutek je javno razgrnjen do vključno 26. 2. 2021.
Parcelacija območja GR 23
Območje GR 23 leži v stanovanjskem predelu Gornje Radgone, med Prešernovo cesto in Hercegovškim potokom ob objektu zdravstvenega doma. Predvideva se gradnja petih objektov, predvsem stanovanjske namembnosti, v pritličjih objektov ob cesti pa se predvideva tudi poslovna dejavnost (pisarne). Občina je v letu 2020 postala lastnik tega območja, v letu 2021 pa smo tudi že pristopili k parcelaciji tega območja. Po izvedeni parcelaciji se bo pristopilo k prodaji teh zemljišč – pet parcel, na katerih bo možna gradnja stanovanjsko poslovnih objektov, v skladu s prostorskim aktom iz leta 1999 - Odlokom o spremembah in dopolnitvah Odloka o ureditvenem načrtu Gornja Radgona – mestno središče.
Prve spremembe in dopolnitve OPN Občine Gornja Radgona
S sprejetjem in objavo sklepa o začetku postopka je občina pričela s postopkom priprave prvih sprememb in dopolnitev občinskega prostorskega načrta Občine Gornja Radgona (v nadaljevanju SD OPN GR 1). Predlagane rešitve imajo osnovo v Občinskem prostorskem načrtu Občine Gornja Radgona (OPN), kjer so bile dolgoročno predvidene v strateškem delu OPN in v obvezni strokovni podlagi OPN – Urbanističnem načrtu, izdelanem za mesto Gornja Radgona in naselje Negova. V navedenem postopku so vključene predlagane spremembe podrobnejše namenske rabe prostora, ki so za občino strateškega pomena, saj je od njih odvisen njen nadaljnji prostorski in gospodarski razvoj. Konkretneje, gre za širitev industrijske cone Mele za 15,3 ha in širitev naselja Negova za 2,7 ha zemljišč. IC Mele predstavlja eno izmed redkih industrijskih con v Pomurju, ki se je nemoteno razvijala naprej kljub vsesplošni gospodarski krizi. Lokacija IC Mele, industrijska tradicija ter uspešnost in stabilnost obstoječih podjetij so glavni dejavniki, ki umeščajo obstoječo IC Mele med najuspešnejše in največje zaposlovalce v Pomurju. Trenutno se v IC Mele na cca. 35 ha nahaja štiriindvajset podjetij z različnimi dejavnostmi, med katerimi prevladujejo kovinska, tekstilna, predelovalna, steklarska in elektronska industrija. Na območju IC Mele praktično ni več prostih stavbnih zemljišč, ki bi omogočale njen nadaljnji razvoj, ampak le še površinsko majhna zemljišča, rezervirana za širitev že obstoječih podjetij. Na določenih že potekajo postopki za izgradnjo novih objektov.
Prve spremembe in dopolnitve Občinskega prostorskega načrta Občine Gornja Radgona so bile posredovane vsem nosilcem urejanja prostora, med drugim tudi Ministrstvu za kmetijstvo, gozdarstvo in prehrano, Direktoratu za kmetijstvo, Sektorju za urejanje kmetijskega prostora in zemljiške operacije, ki se je do pobude za širitev IC Mele in naselja Negova opredelilo negativno in izdalo prvo negativno mnenje. Svojo zavrnitev so utemeljili z navedbo, da ima občina dovolj nepozidanih stavbnih zemljišč. Tako smo pričeli z iskanjem stavbnih zemljišč, katera bi lahko ministrstvu za kmetijstvo ponudili za zamenjavo (sprememba namembnosti iz stavbnega v kmetijski namen), kar je bil dokaj dolgotrajen proces. Kljub izpolnjevanju vseh zahtev, še vedno nismo prejeli pozitivne opredelitve ministrstva, zato smo ponovno podali vlogo za dopolnitev njihovega mnenja. Želimo in tokrat res pričakujemo njihovo pozitivno opredelitev, da bomo lahko nadaljevali s postopkom spremembe OPN.
Grafični prilogi: območje GR 23 in območje GR 27
Članek je objavljen tudi v aktualnem GLASILU Občine Gornja Radgona, marec 2021



























